27/34
Paylaş
Resmi Orjinal Boyutunda Göster
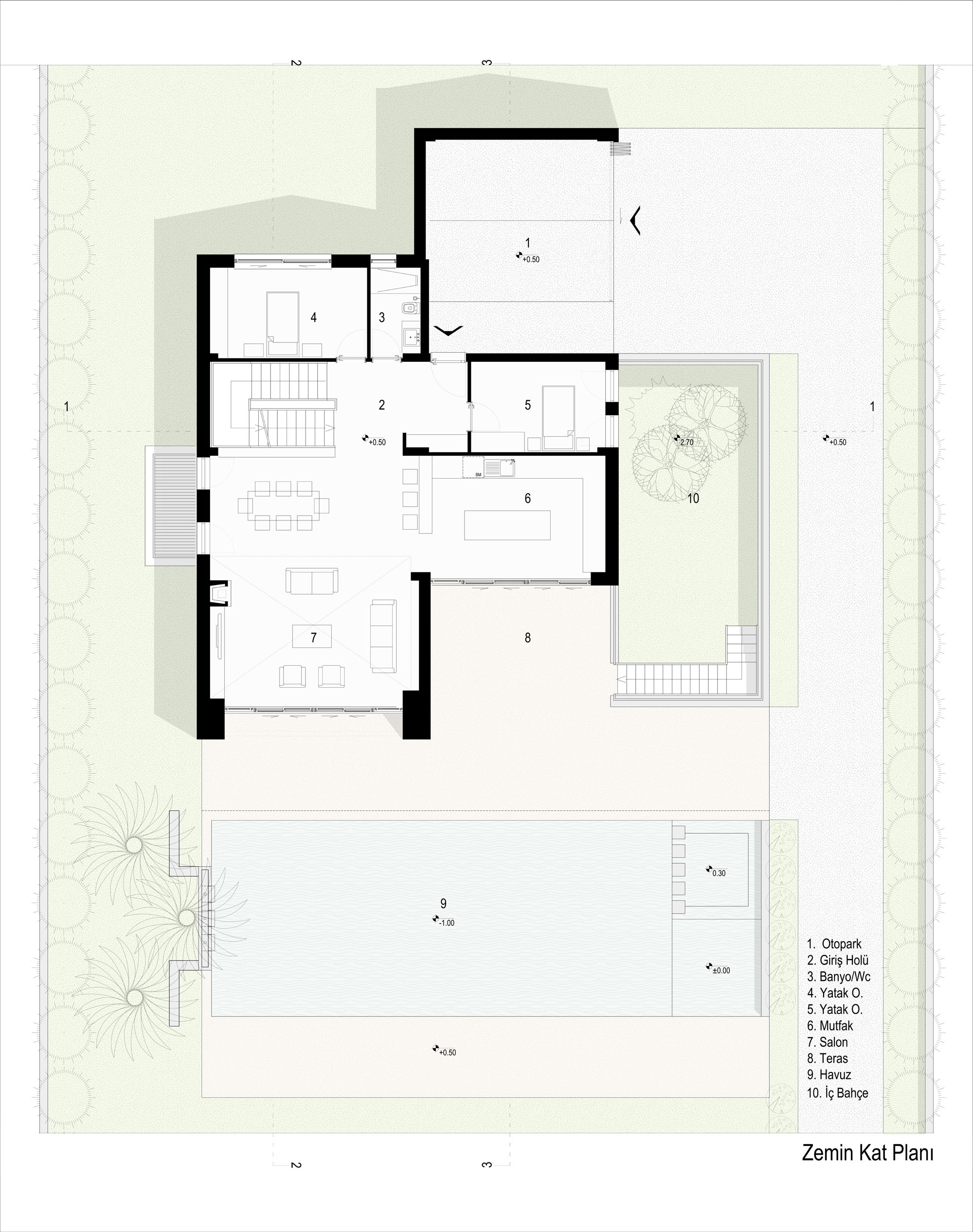
GKE Evi
Proje Yeri: Narlıdere, İzmir
Proje Tipi: Tek Ev / Villa
Proje Tipi Grubu: Konut
Tasarım Ekibi: Ali Can Helvacıoğlu
Danışman: Pınar Kayhan Helvacıoğlu
Ana Yüklenici: K2M İnşaat
Fotoğraf: Zeren + Mehmet Yasa Photography
Şantiye Yöneticisi: Mahir Çimen, Mehmet Arıcı, Kerem Başoğul
Proje Başlangıç Yılı: 2018
Proje Bitiş Yılı: 2018
İnşaat Başlangıç Yılı: 2019
İnşaat Bitiş Yılı: 2022
Arsa Alanı: 3000
Toplam İnşaat Alanı: 485