24/26
Paylaş
Resmi Orjinal Boyutunda Göster
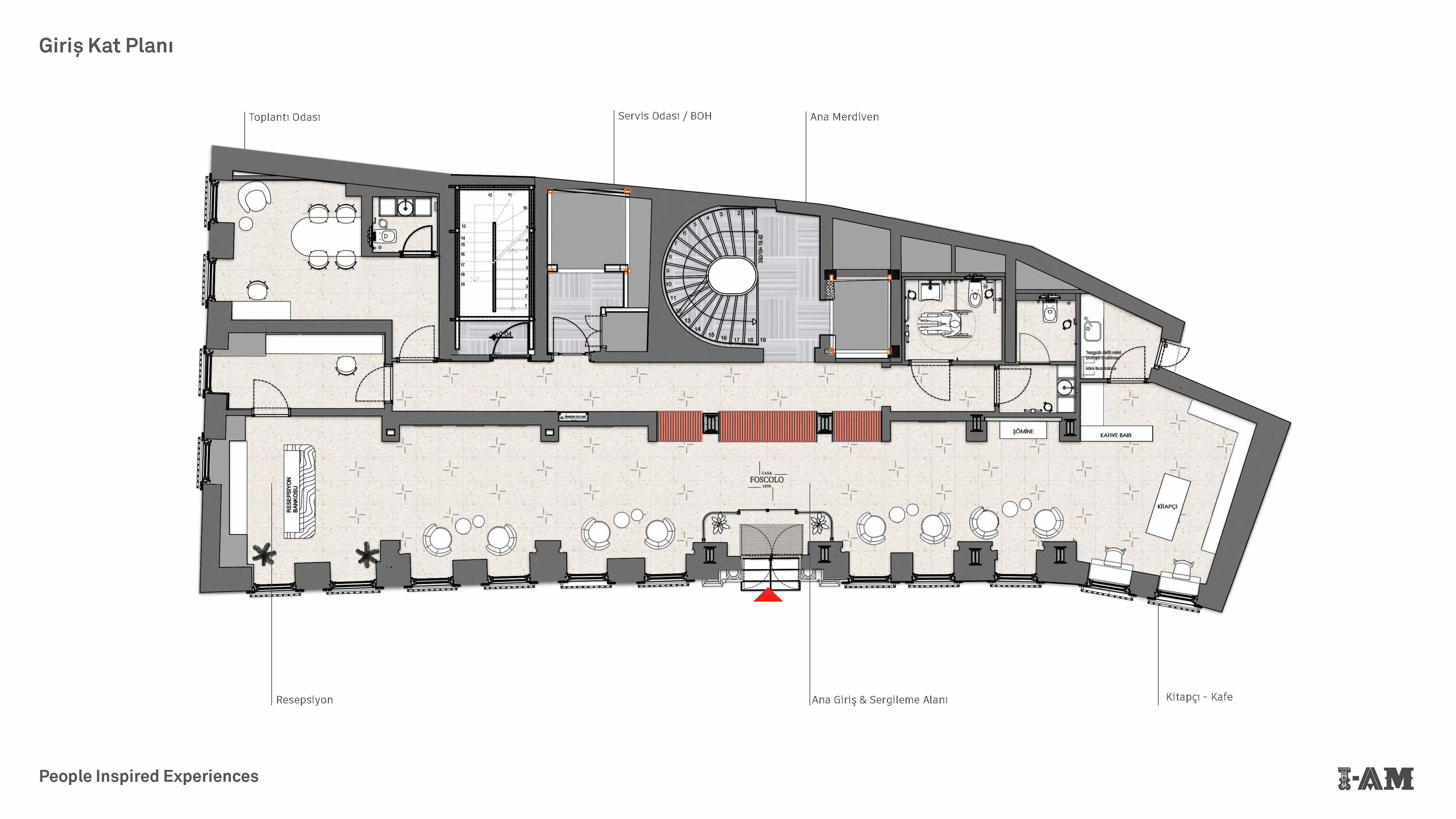
Casa Foscolo
Project Location: İstanbul, Beyoğlu
Project Office: I-AM
Tasarım Ekibi: Emre Kuzlu, Zeynep Beşer, Merve Güner, Nail Altıncezve, Begüm Akkaya, Ece Şeref, Hilal Güneş, Berfin Bayar
Employer: MV Holding
Yardımcı: Siska İnşaat
Interior Architecture: I-AM
Projcet Manager: Emre Kuzlu
Concept Design: I-AM
Construction Drawings: I-AM
Lighting Project: Light2Design
Grafik Tasarım: I-AM
Photography: Kemal Olca
Project Start Date: 2021
Project End Date: 2024
Construction Start Date: 2022
Construction End Date: 2024
Building Plot Area: 360m²
Total Construction Area: 1819m2