13/21
Paylaş
Resmi Orjinal Boyutunda Göster
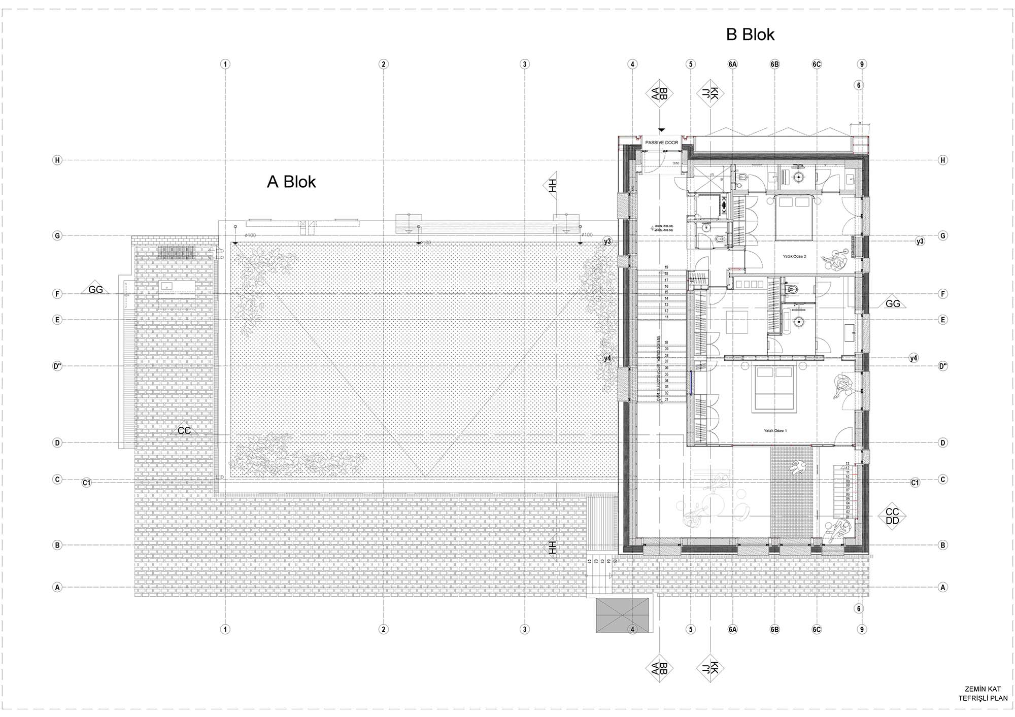
Atli Evi
Proje Yeri: İstanbul, Şile
Proje Ofisi: Studio Mada Architecture & Design
Tasarım Ekibi: Zeynep Tümertekin, Ceren Özşahin
Mimari Proje Ekibi: Aynur Kotil, Ali Gürer
Ana Yüklenici: Monta İnşaat, Yağız Saraçlar
Peyzaj Mimarlığı: Efe Atlı
İç Mekan Projesi: Studio Mada Architecture & Design
Konsept Tasarımı: Studio Mada Architecture & Design
Uygulama Projesi: Studio Mada Architecture & Design, Monta İnşaat
Aydınlatma Projesi: Studio Mada Architecture & Design
Statik Projesi: Streng Muhendislik
Mekanik Projesi: ENAR Mühendislik
Elektrik Projesi: Cem Şenyuva
Tesisat Projesi: ENAR Mühendislik
Çelik Projesi: Streng Muhendislik
Proje Başlangıç Yılı: 2021
Proje Bitiş Yılı: 2022
İnşaat Başlangıç Yılı: 2022
İnşaat Bitiş Yılı: 2024
Arsa Alanı: 5796 m2
Toplam İnşaat Alanı: 931,4 m2