17/27
Paylaş
Resmi Orjinal Boyutunda Göster
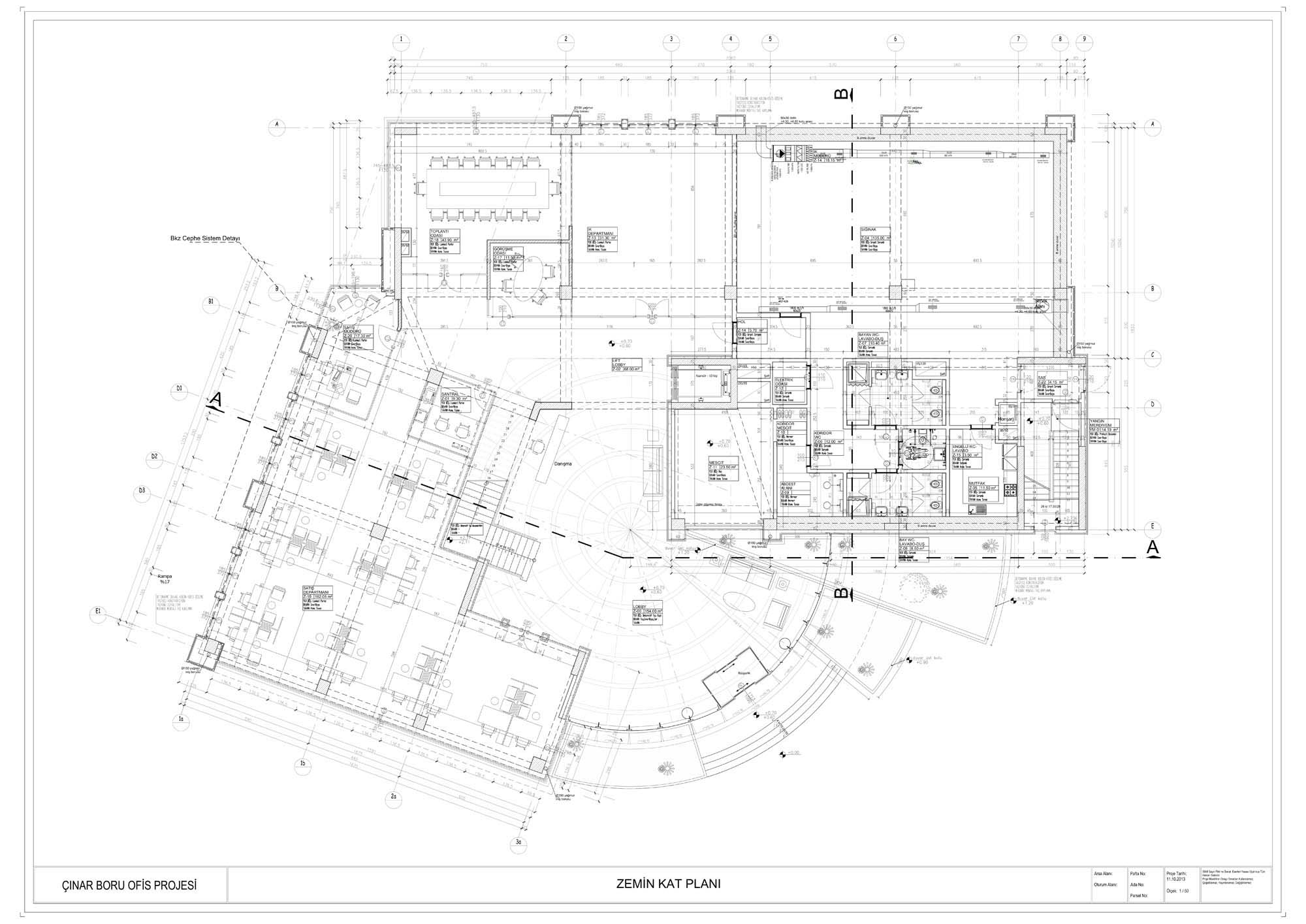
Çınar Boru Yönetim Binası
Project Location: Akçakoca, Düzce
Project Office: Mor Mimarlık
Project Type: Offices
Proje Tipi Grubu: Endüstriyel
Tasarım Ekibi: Okan Utkan, Haluk Büyükergen
Employer: Çınar Boru Profil Sanayi ve Ticaret
Yardımcı: Gamze Tatlıcı
Ana Yüklenici: Çınar Boru Profil Sanayi ve Ticaret
Peyzaj Mimarlığı: Ayşe Kotra, Proje Peyzaj
Projcet Manager: Okan Utkan
Structural Project: Mehmet Noksan, Ninova Mühendislik
Mechanical Project: Sevinç Dalyan, Çizgi Mühendislik
Electrical Project: Midor Artı Mühendislik
Çelik Projesi: Mehmek Noksan
Architectural Supervision: Mor Mimarlık
Construction Site Manager: Selim Acar
Project Start Date: 2014
Project End Date: 2017
Construction Start Date: 2015
Construction End Date: 2017
Building Plot Area: 45,905 m²
Total Construction Area: 2,496 m²