19/27
Paylaş
Resmi Orjinal Boyutunda Göster
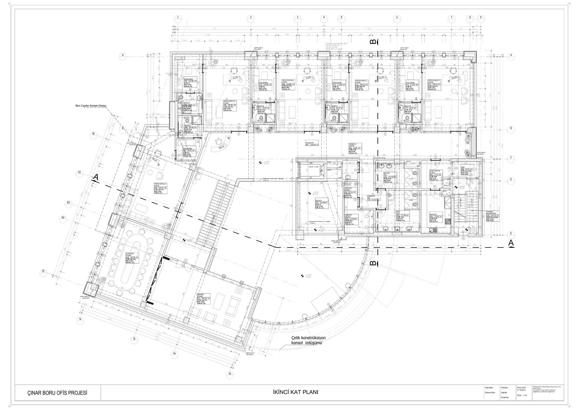
Çınar Boru Yönetim Binası
Proje Yeri: Akçakoca, Düzce
Proje Ofisi: Mor Mimarlık
Proje Tipi: Ofis
Proje Tipi Grubu: Endüstriyel
Tasarım Ekibi: Okan Utkan, Haluk Büyükergen
İşveren: Çınar Boru Profil Sanayi ve Ticaret
Yardımcı: Gamze Tatlıcı
Ana Yüklenici: Çınar Boru Profil Sanayi ve Ticaret
Peyzaj Mimarlığı: Ayşe Kotra, Proje Peyzaj
Proje Yöneticisi: Okan Utkan
Statik Projesi: Mehmet Noksan, Ninova Mühendislik
Mekanik Projesi: Sevinç Dalyan, Çizgi Mühendislik
Elektrik Projesi: Midor Artı Mühendislik
Çelik Projesi: Mehmek Noksan
Mimari Mesleki Kontrollük: Mor Mimarlık
Şantiye Yöneticisi: Selim Acar
Proje Başlangıç Yılı: 2014
Proje Bitiş Yılı: 2017
İnşaat Başlangıç Yılı: 2015
İnşaat Bitiş Yılı: 2017
Arsa Alanı: 45,905 m²
Toplam İnşaat Alanı: 2,496 m²