2/37
Paylaş
Resmi Orjinal Boyutunda Göster
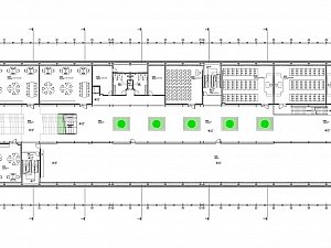
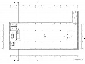
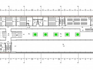
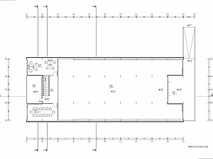
Gebze Teknik Üniversitesi Havacılık ve Uzay Bilimleri Fakültesi
Proje Yeri: Kocaeli (İzmit), Gebze
Proje Ofisi: İbrahim Türkeri – Gönül Karademir Mimarlık
Proje Tipi: Yüksek Öğretim Yapısı
Proje Tipi Grubu: Hakan Kısa, Eğitim Yapısı
Tasarım Ekibi: İbrahim Türkeri, Gönül Karademir
İşveren: Gebze Teknik Üniversitesi Rektörlüğü
Peyzaj Mimarlığı: İbrahim Türkeri, Gönül Karademir
Proje Yöneticisi: İbrahim Türkeri
Konsept Tasarımı: İbrahim Türkeri
Uygulama Projesi: İbrahim Türkeri, Gönül Karademir
Cephe Tasarımı: İbrahim Türkeri, Gönül Karademir
Aydınlatma Projesi: İbrahim Türkeri, Gönül Karademir
Grafik Tasarım: İbrahim Türkeri, Gökberk Özdemir
Statik Projesi: Ramazan Akkaya
Mekanik Projesi: Melek Akkaya
Elektrik Projesi: Emrah Sarıalioğlu, Onur Çakır
Tesisat Projesi: Onur Çakır
Çelik Projesi: Ramazan Akkaya, Melek Akkaya
Fotoğraf: İbrahim Türkeri
Mimari Mesleki Kontrollük: GTÜ Yapı İşleri ve Teknik Dairesi
İnşaat Başlangıç Yılı: 2021
İnşaat Bitiş Yılı: 2025
Arsa Alanı: 15.000 m2