26/37
Paylaş
Resmi Orjinal Boyutunda Göster
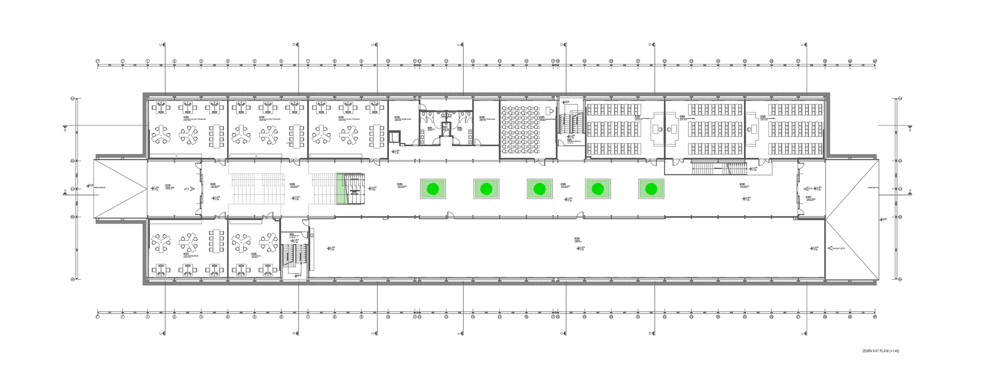
Gebze Teknik Üniversitesi Havacılık ve Uzay Bilimleri Fakültesi
Project Location: Kocaeli (İzmit), Gebze
Project Office: İbrahim Türkeri – Gönül Karademir Mimarlık
Project Type: Higher Education Building
Proje Tipi Grubu: Hakan Kısa, Eğitim Yapısı
Tasarım Ekibi: İbrahim Türkeri, Gönül Karademir
Employer: Gebze Teknik Üniversitesi Rektörlüğü
Peyzaj Mimarlığı: İbrahim Türkeri, Gönül Karademir
Projcet Manager: İbrahim Türkeri
Concept Design: İbrahim Türkeri
Construction Drawings: İbrahim Türkeri, Gönül Karademir
Facade Design: İbrahim Türkeri, Gönül Karademir
Lighting Project: İbrahim Türkeri, Gönül Karademir
Grafik Tasarım: İbrahim Türkeri, Gökberk Özdemir
Structural Project: Ramazan Akkaya
Mechanical Project: Melek Akkaya
Electrical Project: Emrah Sarıalioğlu, Onur Çakır
Plumbing Project: Onur Çakır
Çelik Projesi: Ramazan Akkaya, Melek Akkaya
Photography: İbrahim Türkeri
Architectural Supervision: GTÜ Yapı İşleri ve Teknik Dairesi
Construction Start Date: 2021
Construction End Date: 2025
Building Plot Area: 15.000 m2