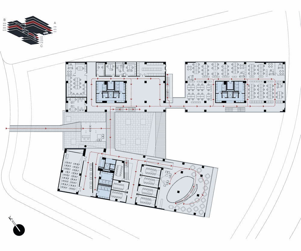
0.00 Kotu Planı
17/24
Paylaş
Resmi Orjinal Boyutunda Göster
Ibtech Bilgi İşlem Merkezi Genel Müdürlüğü
Proje Yeri: Kocaeli (İzmit)
Proje Ofisi: CM Mimarlık
Proje Tipi: Ofis
Tasarım Ekibi: Cem Sorguç
İşveren: IBTECH
Yardımcı: Çağrı Küçükay, Ceylan Elgin, Barış Kıldiş, Zeynep Onuktav
Ana Yüklenici: Tefirom Group, DİEM Mühendislik Mimarlık
İç Mekan Projesi: CM Mimarlık
Statik Projesi: İmar İnşaat Yapı Mühendisliği
Mekanik Projesi: OMS Tesisat İnşaat Taahüt Tic. ve San. Ltd. Şti.
Elektrik Projesi: ERK Proje Mühendislik
Proje Başlangıç Yılı: 2007
Proje Bitiş Yılı: 2007
İnşaat Başlangıç Yılı: 2008
İnşaat Bitiş Yılı: 2009
Arsa Alanı: 8.274 m2
Toplam İnşaat Alanı: 11.700 m²