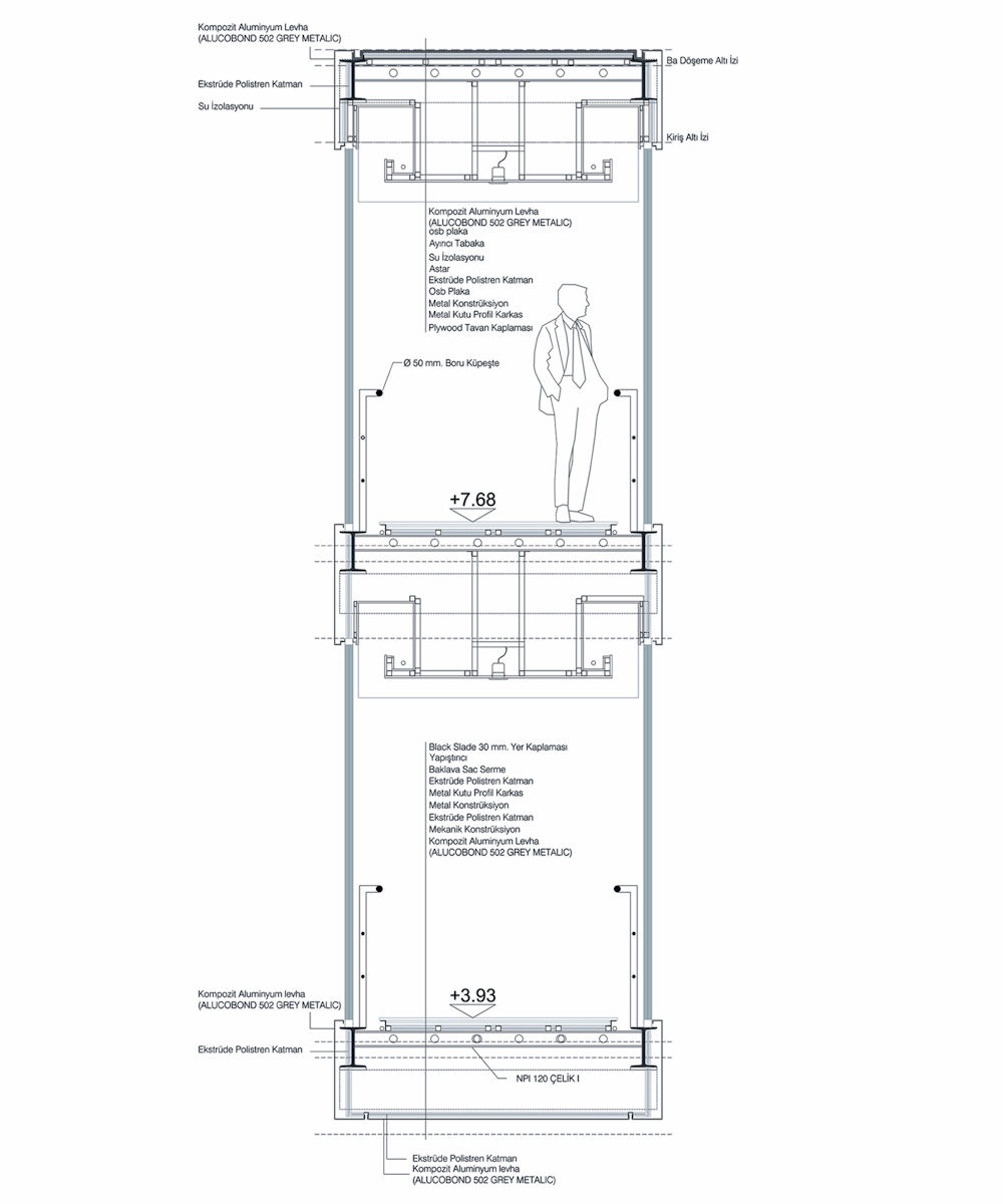
Köprü Detay
21/24
Paylaş
Resmi Orjinal Boyutunda Göster
Ibtech Bilgi İşlem Merkezi Genel Müdürlüğü
Project Location: Kocaeli (İzmit)
Project Office: CM Mimarlık
Project Type: Offices
Tasarım Ekibi: Cem Sorguç
Employer: IBTECH
Yardımcı: Çağrı Küçükay, Ceylan Elgin, Barış Kıldiş, Zeynep Onuktav
Ana Yüklenici: Tefirom Group, DİEM Mühendislik Mimarlık
Interior Architecture: CM Mimarlık
Structural Project: İmar İnşaat Yapı Mühendisliği
Mechanical Project: OMS Tesisat İnşaat Taahüt Tic. ve San. Ltd. Şti.
Electrical Project: ERK Proje Mühendislik
Project Start Date: 2007
Project End Date: 2007
Construction Start Date: 2008
Construction End Date: 2009
Building Plot Area: 8.274 m2
Total Construction Area: 11.700 m²