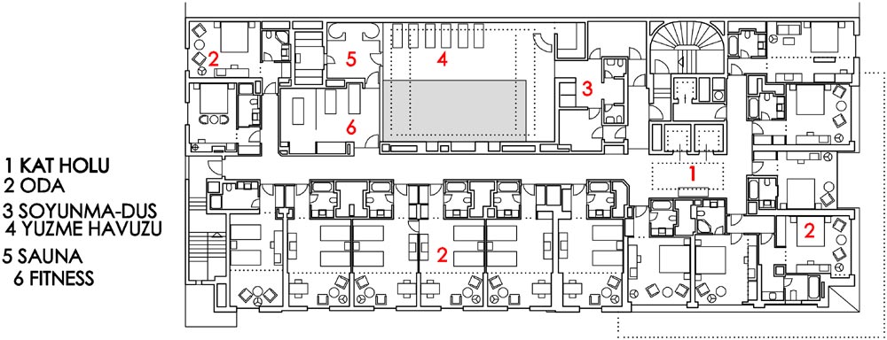
1. Kat Planı
20/22
Paylaş
Resmi Orjinal Boyutunda Göster
Ontur Otel
Project Location: İzmir
Project Office: SUTE Proje
Project Type: Hotel / Motel
Tasarım Ekibi: Umut İnan, Efe İnan
Employer: Onur İnşaat AŞ
Ana Yüklenici: Onur İnşaat AŞ
Project Start Date: 2003
Project End Date: 2007
Construction Start Date: 2004
Construction End Date: 2007