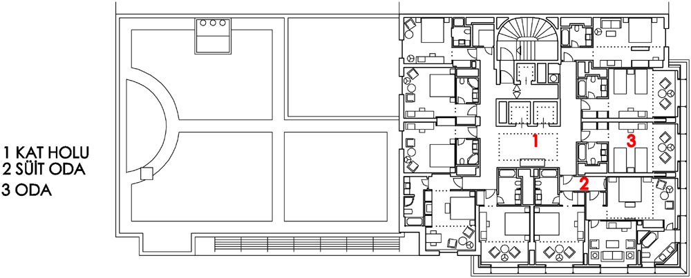
Normal Kat Planı
21/22
Paylaş
Resmi Orjinal Boyutunda Göster
Ontur Otel
Proje Yeri: İzmir
Proje Ofisi: SUTE Proje
Proje Tipi: Otel / Motel
Tasarım Ekibi: Umut İnan, Efe İnan
İşveren: Onur İnşaat AŞ
Ana Yüklenici: Onur İnşaat AŞ
Proje Başlangıç Yılı: 2003
Proje Bitiş Yılı: 2007
İnşaat Başlangıç Yılı: 2004
İnşaat Bitiş Yılı: 2007